Gia đình tôi có một căn nhà cũ cấp bốn, rộng 4 m, dài 8 m, nở hậu 0,7 m, mặt tiền hướng đông nam, tọa lạc trên một con hẻm rộng 2 m. Nhà đông người nên tôi muốn xây dựng một căn nhà nhiều tầng cho nhiều gia đình ở. (Đỗ Phúc) Yêu cầu: Tầng trệt dành để xe máy, tầng lửng làm phòng tiếp khách, mỗi tầng còn lại có một phòng ngủ, bếp, toilet. Tầng thượng làm chỗ giặt phơi đặt máy phát điện… Xin bố trí cho gia đình chúng tôi một thang máy mini, cầu thang bộ. Vì diện tích nhỏ nên gia đình không cần ban công mặt tiền, chỉ cần thông gió cho các tầng. Xin cảm ơn. Trả lời: Theo như yêu cầu bạn gửi, gia đình có nhiều thành viên cùng chung sống nên để giải quyết một cách tối đa nhu cầu sử dụng thì giải pháp làm nhà nhiều tầng là hợp lý. Tuy nhiên, bạn cần có giấy phép xây dựng để quyết định số lượng tầng, nhất là khi nhà của bạn có diện tích nhỏ, lại xây nhiều tầng. Bị hạn chế về diện tích nhưng chúng tôi đã cố gắng bố trí không gian giao thông và không gian sử dụng một cách khoa học và hợp lý nhất.
Tầng trệt dùng làm garage để ôtô và xe máy. Ngoài thang bộ sử dụng cho việc đi lại và thoát hiểm, bố trí thêm một thang máy phục vụ cho việc lưu thông giữa các tầng nhà. Thang máy và thang bộ được đặt thành một cụm giao thông xuyên suốt các tầng và đặt ở vị trí cuối nhà ở phía khu đất bị méo. Sảnh của thang máy được mở về phía thang bộ nhằm tiết kiệm diện tích, cũng để xoá đi được những khiếm khuyết của phần đất.
Từ tầng 1 tiếp cận lên gác lửng và các tầng trên bằng thang bộ hoặc thang máy. Tầng lửng là một phòng khách chung. Ngoài ra, còn có một khu vệ sinh và chiếu nghỉ của thang máy và thang bộ. Ở vị trí méo của khu đất, chúng tôi bố trí những khoảng thông tầng xuyên suốt theo khối nhà góp phần điều hoà thông gió cho ngôi nhà nhằm giải quyết tốt vấn đề vật lý kiến trúc tạo ra khoảng sân trong nhà.
Từ tầng 1 đến tầng 9 thiết kế giống nhau gồm có một phòng ở, khu vực bếp ăn và khu vệ sinh. Ở các không gian của phòng ngủ, khu bếp nằm ở vị trí khu đất méo đã được xử lý triệt để bằng việc bố trí đồ nội thất nhằm khoá đi những khiếm khuyết và tạo không gian còn lại được vuông vắn, thuận lợi hơn cho việc sử dụng.
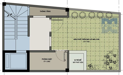
Trên tầng thượng là nơi đặt máy giặt, nơi để máy phát điện của gia đình và phần diện tích còn lại là sân phơi. Toàn bộ khu vực sân phơi được bố trí mái che để đảm bảo an toàn cho máy phát điện và cũng tiện trong việc phơi đồ những lúc mưa gió. Ngoài ra, ở vị trí này bạn có thể bố trí vườn cảnh với giò treo phong lan, trúc quân tử, trúc nhật…đảm bảo đây sẽ là nơi thư giãn tuyệt vời cho gia đình bạn. Hy vọng gia đình bạn sẽ hài lòng với phương án này. KTS Lê Đức Dũng |
Đất 32 m2, xây nhà nhiều tầng
401
previous post





